Лучшее предложение в центре Минска:
новая 2-х / 3-х комн. просторная квартира, метро "Академия наук" (~ 5 мин. пешком) , от Собственника.
--
● Жилой дом «Я.Коласа, 34/Б» для тех, кто ценит удобство и комфорт.
--
Описание объекта:
Качественный современный дом, все коммуникации выполнены на высоком профессиональном уровне. Квартира с высокими потребительскими качествами.
--
Толстые блочные стены, вентилируемый фасад, разводка под два СУ, гардеробная.
Разведена электрика, стяжка на полу, стены подготовлены под финишную отделку.
Квартира со строительной отделкой.
--
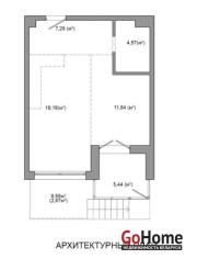
Параметры объекта:
● этаж: 6 / 17;
● тип дома: каркасно-блочный;
● площадь общая: 83,4 м²; по СНБ: 86,4 м²;
● площадь жилых комнат 41,4 м² (гостиная 25,5 м² + спальня 15,9 м²);
● лоджия: 4,3 м² (с учетом коэф.: 3,0 м²);
● площадь с/у: 6,2 м²;
● высота потолков: 2,7 м;
● лоджия застеклена (стеклопакеты раздвижные);
● разводка под 2 санузла;
● подземный 2-х этажный паркинг;
● огороженная территория, шлагбаум;
● видеонаблюдение (на территории дома и в подъезде);
● на этаже: металлическая дверь с видеодоступом;
● два лифта, чистый подъезд;
● металлическая дверь в квартире;
● счётчики: воды, света, тепла.
--
Описание объекта:
Окна выходят в тихий, огороженный двор. Не смотрят в окна соседних домов. Все окна в сторону пл. «Я. Коласа»,.
Солнечная сторона.
Во дворе детская площадка, зеленый тихий, огороженный двор.
--
Условия продажи:
Расчеты осуществляются через банк в рублях, в соответствии с законодательством Республики Беларусь.
--
● с Агентами договор на продажу, сотрудничество НЕ ЗАКЛЮЧАЮ !
